Nice areas for rent in Malagnou
        
          
        
        Genève, Genève
      
      Located at the beginning of the Route de Malagnou, these business premises offer a great opportunity to set up your business in a luxury building in one of Geneva’s most sought-after districts.
The address benefits from a strategic location in the immediate vicinity of the city center, while offering a quiet, green environment. The offices are ideally served by public transport, with several bus and streetcar lines just a few steps away.
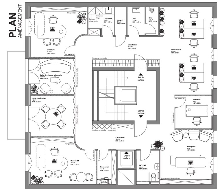
The building offers two independent, bright, walk-through areas of 182 m² on the 1st floor and another of the same size on the 2nd. Flexible in their layout, they are ideal for a variety of activities.
The offices have a separate entrance on the ground floor, with a dedicated elevator to the office floors, and are composed as follows:
7 offices
1 conference room
1 IT room
2 washrooms
1 kitchenette
2 landing doors 
Rent CHF 530/m²/year + service charges and ancillary costs CHF 65/m²/year.
Rent CHF 8’040.- per month
Charges CHF 1’018.- per month
Basement parking spaces available at CHF 370.-/unit/month or external parking spaces at CHF 270.-/unit/month.
Contact for further information and viewing:
Mr. Grégoire MARRA
+41 22 319 88 17
+41 79 395 82 62
commercial@comptoir-immo.ch
| Type of property | Office | 
|---|---|
| Address | Route de Malagnou 6, Genève | 
| Rent | CHF 530.- / m² / year | 
| Floor | 2nd | 
| Useful area | 182 m² | 
| Availability | Available immediately | 
| Reference | 86404713 | 
Are you interested?
Contact form
"*" indicates required fields
- 
        1Fill in the contact form to request a visit
- 
        2Complete the rental request form
- 
        3Calculate your rent guarantee premium
 
           
           
           
           
           
           
           
           
           
           
           
           
           
           
           
                   
                   
                   
                   
                   
                   
                   
                   
                   
                   
                   
                   
                   
                   
                   
                   
                   
                   
                   
                   
                   
                   
                   
                   
                   
                  