Thônex, Genève
Retour à la liste

Belle arcade traversante avec terrasse

Thônex, Genève

CHF 5'070.- / mois charges comprises
1/10
2/10
3/10
4/10
5/10
6/10
7/10
8/10
9/10
10/10

Bienvenue à Belle-Terre, un quartier moderne et écoresponsable situé dans la charmante commune de Thônex. Ce projet urbain ambitieux et innovant est conçu pour offrir une qualité de vie supérieure à ses résidents.

Belle-Terre se distingue par son engagement en faveur du développement durable. Les bâtiments sont conçus pour s’intégrer harmonieusement dans le paysage, avec une attention particulière portée à la préservation des espaces verts. Les résidents peuvent profiter de promenades paisibles et de nombreux espaces de rencontre et de loisirs.

De plus, le quartier bénéficie d’une excellente connectivité grâce à sa proximité avec les gares du Léman Express de Chêne-Bourg, facilitant les déplacements vers Genève et au-delà. 5 lignes de bus desservent également le quartier, offrant une alternative pratique à la voiture.

Avec ses 670 logements déjà disponibles et ses 2’000 autres prévus pour les phases supplémentaires, Belle-Terre est un quartier en pleine expansion. Avec son association des commerçants, il vous offrira une opportunité unique de vivre dans un environnement moderne, tout en restant proche de la nature et des commodités urbaines.

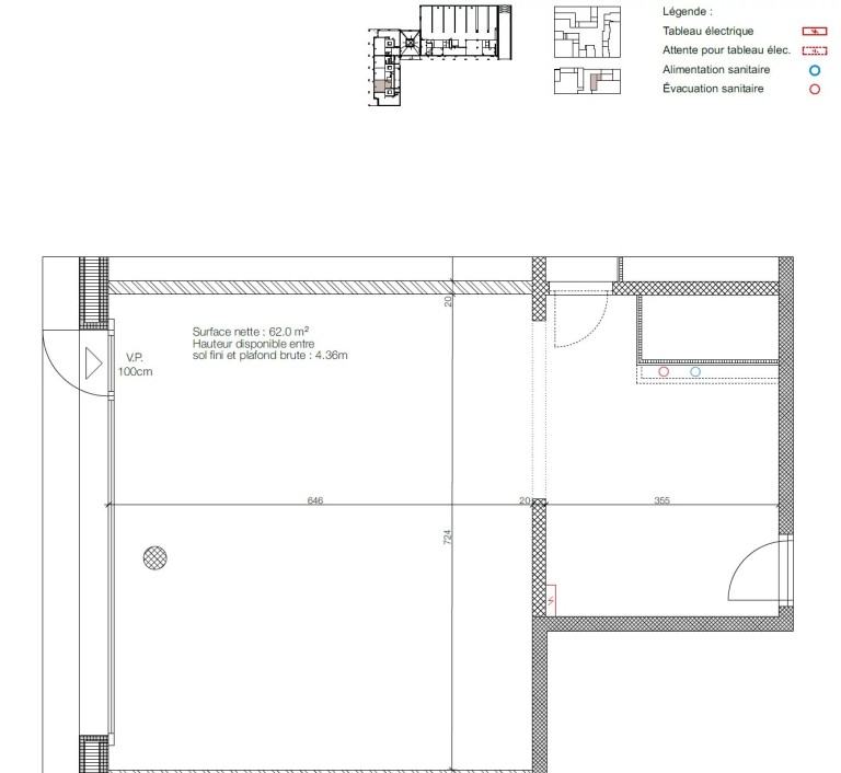
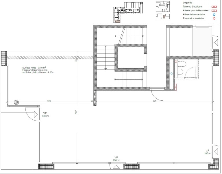
Le bâtiment MOLE 1 propose à la location une arcade lumineuse et traversante de 156 m².

Descriptif de la surface :
– Restauration possible
– Surface livrée brute
– 4 portes d’entrée
– attentes pour les arrivées et évacuation d’eau
– chauffage par ventilo convecteur en plafond
– tableau électrique
– 2 portes donnant accès aux communs de l’immeuble et surfaces de dépôts en sous-sol
– Superbe surface de terrasses avec vue dégagée sur le Salève et coin verdure
– gaines de ventilation en attente
– Places de parking visiteurs en sous-sol

Possibilité de louer des places de parking en sous-sol.

Aussi, Belle-Terre accueille déjà :

– Denner
– Pharmacie et centre médical
– Podologue
– Cabinet de vétérinaire
– Crèche privée
– Salle de boxe
– Crossfit
– Petite structure de soutien scolaire
– Salon esthétique
– Magasin de vente et réparation de vélos
– kiosque tabac épicerie
– Service de la cohésion sociale de la commune de Thônex
– Gérance de quartier
– Simulateur de voiture de course

et accueillera dans les prochains mois :

– Pâtisserie tearoom boulangerie
– Sushi, poke et chinois à l’emporter
– Hot dog et waffle à consommer sur place et à l’emporter
– Barber

Type de bien Arcade
Adresse Place du Traité-de-Turin 5, Thônex
Loyer CHF 4'420.- / mois
Charges CHF 650.-
Surface utile 156 m²
Ascenseur Oui
Disponibilité Disponible immédiatement
Référence 85310701
Ajouter aux favoris Retirer des favoris

Pour visiter

Votre contact BELLEC Gaëtan
gbellec@comptoir-immo.ch
Formulaire de contact

Vous êtes intéressés ?

Formulaire de contact

« * » indique les champs nécessaires

Ce champ n’est utilisé qu’à des fins de validation et devrait rester inchangé.
JJ slash MM slash AAAA
En cliquant sur «Envoyer» ci-dessous, vous autorisez l'entreprise Comptoir Immobilier SA à stocker et traiter les données personnelles soumises ci-dessus.
  • 1
    Remplissez le formulaire de contact pour faire une demande de visite
  • 2
    Remplissez le formulaire de demande de location
  • 3
    Calculez votre prime, pour obtenir votre garantie de loyer

Formulaire d’inscription (PDF)

Veuillez remplir le formulaire de demande locative ci-joint.
Télécharger le PDF
Smart Caution
Votre garantie de loyer sans dépôt bancaire!
Calculer votre prime