Thônex, Genève
Retour à la liste

Surfaces administratives de 580 m² au cœur d’un projet d’envergure

Thônex, Genève

CHF 340.- / m² / an
1/10
2/10
3/10
4/10
5/10
6/10
7/10
8/10
9/10
10/10

Le projet de « BELLE-TERRE – Les Communaux d’Ambilly » est le fruit d’une étroite et longue collaboration entre un groupement de promoteurs, les services de l’État de Genève et les représentants des communes concernées, auxquels ont également été associés riverains et associations.

Situé sur la Rive Gauche à moins de 5 km du centre-ville et en limite de la Commune de Thônex, ce quartier est parfaitement intégré aux réseaux de transports genevois ; une situation privilégiée à Genève.

Son bâtiment administratif « 02 », au concept énergétique innovant, propose à la location 1’700 m² de surfaces administratives réparties sur 3 étages.

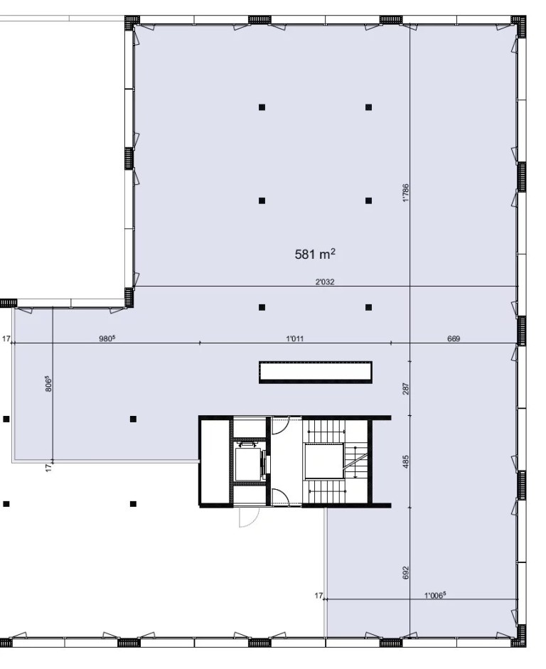
Descriptif des surfaces :

– 3ème étage : 581 m² divisible
– 4ème étage : 581 m² divisible
– 5 ème étage : 556 m²
– Totale flexibilité d’aménagement
– Ascenseurs et monte-charges
– surfaces livrées brutes
– chauffage par ventilo convecteurs au plafond

Loyer des surfaces :

Dès CHF 340.-/m²/an + TVA
+ Provisions sur charges CHF 45.-/m²/an + TVA

Contacts pour les visites :

Service commercial
+41 22 319 88 17
+41 22 319 89 22
commercial@comptoir-immo.ch

Type de bien Bureau
Adresse Place du Traité-de-Turin 9, Thônex
Loyer CHF 340.- / m² / an
Etage 1er
Nombre de niveaux hors-sol 1
Surface utile 581 m²
Disponibilité À convenir
Référence 32584
Ajouter aux favoris Retirer des favoris

Pour visiter

Votre contact BELLEC Gaëtan
gaetan.bellec@comptoir-immo.ch
Formulaire de contact

Vous êtes intéressés ?

Formulaire de contact

« * » indique les champs nécessaires

Ce champ n’est utilisé qu’à des fins de validation et devrait rester inchangé.
JJ slash MM slash AAAA
En cliquant sur «Envoyer» ci-dessous, vous autorisez l'entreprise Comptoir Immobilier SA à stocker et traiter les données personnelles soumises ci-dessus.
  • 1
    Remplissez le formulaire de contact pour faire une demande de visite
  • 2
    Remplissez le formulaire de demande de location
  • 3
    Calculez votre prime, pour obtenir votre garantie de loyer

Formulaire d’inscription (PDF)

Veuillez remplir le formulaire de demande locative ci-joint.
Télécharger le PDF
Smart Caution
Votre garantie de loyer sans dépôt bancaire!
Calculer votre prime