Le Grand-Saconnex, Genève
Retour à la liste

Rubeus, 4 villas THPE

Le Grand-Saconnex, Genève

CHF 2'390'000.-
1/14
2/14
3/14
4/14
5/14
6/14
7/14
8/14
9/14
10/14
11/14
12/14
13/14
14/14

Connue pour sa proximité avec les Organisations Internationales, l’aéroport, la gare CFF et le réseau autoroutier, la commune du Grand-Saconnex offre une position stratégique.

Les quatre villas THPE sont de type jumelle, permettant à chacune de jouir d’une position en pignon.

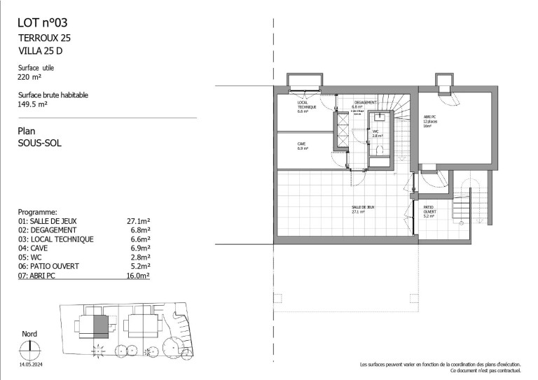
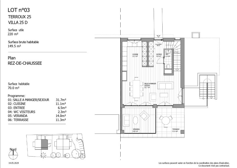
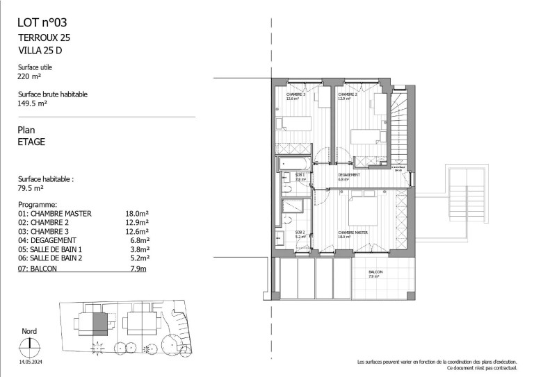
Surfaces, hauteur de plafond et détails du sous-sol
– Rez-de-chaussée : 70 m². Hauteur de plafond : 2.80 m.
– Véranda : 14 m². Hauteur de plafond : 2.80 m.
– 1er étage : 80 m². Hauteur de plafond . 2.60 m.
– Sous-sol : 70 m². Hauteur de plafond : 2.50 m.
– Une salle de douche peut être créée sur demande au sous-
sol, qui est chauffé, comme l’entier de la maison, par
une pompe à chaleur.

Budgets
– Cuisine : CHF 45’000.– (V-ZUG).
– Parquet : CHF 100.–/m².
– Carrelage : CHF 80.–/m².

Processus de vente
– Quote-part terrain.
– Entreprise générale : Effibat SA.
– Banque : Valiant SA.

Nombre de niveaux hors-sol 3
Année de construction 2025
Pièces 6
Chambres 3
Surface habitable 150 m²
Surface du terrain 461 m²
Terrasse 1
Exposition Est, Ouest, Sud
Disponibilité Disponible immédiatement
Référence Lot 3D
Ajouter aux favoris Retirer des favoris

Pour visiter

Votre contact Comptoir Immobilier Genève
ASSIR Nathalie
Téléphone +41 79 448 74 41
Formulaire de contact

Vous êtes intéressés ?

En tant que spécialiste de l’immobilier en Suisse romande, le Groupe Comptoir Immobilier est fier de sa longue histoire et de sa solide réputation. Depuis 1825, notre groupe a développé une expertise inégalée dans le domaine de l’immobilier, offrant des services complets, de la vente à la location en passant par la régie.

Si vous cherchez à acheter, vendre ou louer un bien immobilier à Genève, nous vous invitons à contacter notre agence Comptoir Immobilier de Genève pour obtenir des conseils professionnels et une assistance personnalisée. Nous sommes là pour vous aider à réaliser votre projet immobilier et pour vous accompagner dans chaque étape du processus.

Formulaire de contact

« * » indique les champs nécessaires

Ce champ n’est utilisé qu’à des fins de validation et devrait rester inchangé.
En cliquant sur «Envoyer» ci-dessous, vous autorisez l'entreprise Comptoir Immobilier SA à stocker et traiter les données personnelles soumises ci-dessus.
  • 1
    Remplissez le formulaire de contact pour discuter du bien qui vous intéresse
  • 2
    Simulez rapidement votre capacité d'emprunt pour votre projet immobilier
  • 3
    Organiser une visite avec notre courtier pour visiter le bien

Votre contact

Comptoir Immobilier Genève
ASSIR Nathalie
Afficher le numéro de téléphone

Nos clients nous recommandent !

Simulez votre prêt

Grâce au calculateur hypothécaire Resolve, vous pouvez calculer rapidement votre capacité d'emprunt, le taux d'endettement, le taux d'avance, le coût et les mensualités de votre prêt pour votre projet immobilier en Suisse. Complétez les champs pour obtenir une première estimation de votre solvabilité.