Genève, Genève
Retour à la liste

Belles surfaces à louer à Malagnou

Genève, Genève

CHF 530.- / m² / an
1/16
2/16
3/16
4/16
5/16
6/16
7/16
8/16
9/16
10/16
11/16
12/16
13/16
14/16
15/16
16/16

Situées au début de la route de Malagnou, ces surfaces professionnelles offrent une belle opportunité d’installer votre activité dans un immeuble de standing et dans l’un des quartiers les plus prisés de Genève.

L’adresse bénéficie d’une localisation stratégique, à proximité immédiate du centre-ville, tout en offrant un environnement calme et verdoyant. Les bureaux sont idéalement desservis par les transports publics, avec plusieurs lignes de bus et tram à quelques pas.

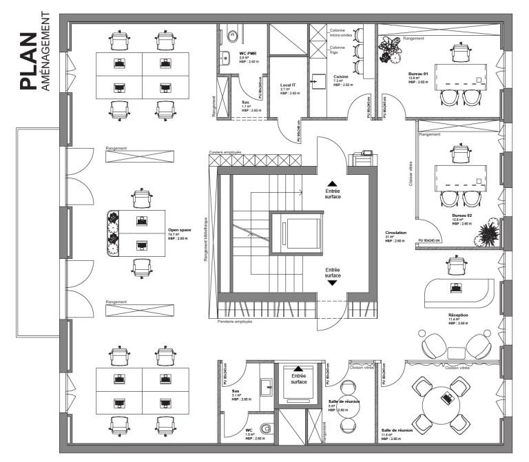
Le bâtiment propose deux surfaces lumineuses, traversantes de 364 m² réparties entre le 1er et le 2ème étage. Flexibles dans l’aménagement, elles pourront parfaitement correspondre à une variété d’activités.

Les bureaux disposent d’une entrée indépendante au RDC avec un ascenseur dédié aux étages de bureau.

chaque étage se compose comme suit :

7 bureaux
1 salle de conférence
1 local IT
1 local économat
2 sanitaires
1 kitchenette
2 portes palières

Loyer de CHF 530.-/m²/an + charges et frais accessoires de CHF 65.-/m²/an.

Loyer CHF 16’076.- mois
Charges CHF 1’972.- mois

Possibilité de places de parking en sous-sol à CHF 370.-/unité/mois ou extérieures à CHF 270.-/unité/mois.

Contact pour plus de renseignements et visite :

M. Grégoire MARRA
+41 22 319 88 17
+41 79 395 82 62
commercial@comptoir-immo.ch

Type de bien Bureau
Adresse Route de Malagnou 6, Genève
Loyer CHF 530.- / m² / an
Etage 2ème
Surface utile 364 m²
Disponibilité Disponible immédiatement
Référence 86404707
Ajouter aux favoris Retirer des favoris

Pour visiter

Votre contact MARRA Grégoire
marra@comptoir-immo.ch
Formulaire de contact

Vous êtes intéressés ?

Formulaire de contact

« * » indique les champs nécessaires

Ce champ n’est utilisé qu’à des fins de validation et devrait rester inchangé.
JJ slash MM slash AAAA
En cliquant sur «Envoyer» ci-dessous, vous autorisez l'entreprise Comptoir Immobilier SA à stocker et traiter les données personnelles soumises ci-dessus.
  • 1
    Remplissez le formulaire de contact pour faire une demande de visite
  • 2
    Remplissez le formulaire de demande de location
  • 3
    Calculez votre prime, pour obtenir votre garantie de loyer

Formulaire d’inscription (PDF)

Veuillez remplir le formulaire de demande locative ci-joint.
Télécharger le PDF
Smart Caution
Votre garantie de loyer sans dépôt bancaire!
Calculer votre prime